Отдельные элементы конструкции и оборудования подводных лодок Вальтера XVII серии

Турбинная установка Вальтера

Первой важнейшей частью установки Вальтера был насос тройного действия. Он служил для подачи перекиси водорода, топлива и чистой воды в камеру сгорания. Для его создания техники Барске и Хеншель использовали роторный подпитывающий насос, ротор которого создавал необходимое давление. Они сверх того улучшили герметизацию (необходимость в смазке отпала) как у обычного центробежного насоса. Насос тройного действия приводился в действие электромотором AWT-88 фирмы AEG. расположенным вертикально над шестерёнчатым редуктором. Его мощность была 6,2-20 квт при 1700-2500 оборотах в минуту и напряжении 110 вольт или 14-81 квт при 2250-4000 об/мин и 320 в.

При 4000 об/мин мотор разгонял центробежный насос до 24000 об/мин и подача смеси достигала следующих мощностей:

Топливный насос 1.845 мЗ( 1.69 т декалина)/час

Насос для перекиси водорода 9,5 м³ (2,77 т перекиси)/час

Водяной насос 15,85 мЗ/час

4-х позиционный регулятор подачи смеси фирмы Сименс дозировал три компоненты (топливо, перекись водорода и вода) насосом тройного действия в следующем весовом соотношении: 1:9:10 и регулировал 4-й компонент, который снаружи компенсировал различия веса перекиси водорода и воды в регулирующих камерах поступающей морской водой.

Первоначально па подлодках Wa 201 и WK 202 4-х позиционный регулятор подачи смеси находился перед насосом тройного действия. Четыре счетчика управляли подачей проточных жидкостей с помощью сжатого воздуха и имели регулирующие клапаны для топлива, чистой и морской воды, которые подавались в напорный трубопровод насосом тройного действия. В случае неправильного смешивания и нарушения требуемых пропорций поступающих отдельных компонентов регулирующие клапаны открывались или закрывались.

При первых испытаниях подлодки XVII В возникли проблемы регулировки, что потребовало изменений в конструкции. Поменяли 4-х позиционный регулятор подачи смеси и пасос тройного действия, регуляторы которых стали приводиться в действие электромеханизмом и обеспечивали требуемый расход смеси.

Счетчики текучести обладали вращающимися качающимися шайбами, которые при каждом вращении пропускали только определенную жидкость (например перекись водорода в диапазоне 29- 174 л/мин). После модернизации они были состыкованы с регулирующими клапанами и были установлены прямо над редуктором. Требуемое соотношение компонентов достигалось также крыльчаткой с фильтрующими клапанами. Благодаря соединительному валу, приводимым в действие электромотором 0.5 л.с., она влияла на положение клапанов и тем самым регулировала расход смеси. В каждой камере находился измерительный прибор, который непосредственно показывал состояние текучей массы.

Разделение насосов и регуляторов хотя было конструктивно необходимо, но создало много трудностей при постройке и эксплуатации. Поэтому для этих целей позже был применен продувочный насос, который так же мог дозировать смесь. Он был впервые установлен и испытан на торпеде Вальтера «Штайнвал», которая использовалась после войны на новых подлодках Вальтера.

Деструктор или камера каталитического разложения (фирмы Рурсталь) был камерой высокою давления, на сите которого находился катализатор. Элементы его состояли из керамических кубиков или трубчатых гранул длиной около 1 см, пропитанных раствором перманганата кальция. Перекись водорода поступала через многочисленные отверстия в крышке прибора. Продукт разложения (смесь водяного пара и кислорода) проходил через каменистый слой и нагревался до температуры 485о С. При этом происходил определенный износ элементов катализатора из-за загрязнения газо-паровой смесью, сохранение активности катализатора оставалась главной задачей. I кг элементов катализатора пропускал до 720 кг в час перекиси водорода при давлении 30 атм. После 3-4 часов работы установки требовалась регенерация элементов катализатора.

Камера сгорания (фирмы Рурсталь) состояла из цилиндрической камеры высокого давления из особопрочной закаленной стали. Она имела размеры: высота 80 см, диаметр 35 см. Ежечасно в ней сгорало 35-40 т горючего газа при температуре 550о С и давлении 30 атм. Смесь водяного пара и кислорода поступала через боковые патрубки в кольцевой канал внутри крышки камеры сгорания. Отсюда через 6 отверстий (форсунок) она поступала непосредственно в камеру сгорания. В центре каждой форсунки находилось топливное сопло (жиклёр), через которое в камеру впрыскивалось горючее. Свечи зажигания находились в центре крышки камеры сгорания. Температура в верхней части камеры сгорания достиг ала 2000о С. За счет впрыскивания чистой воды и системы водяного охлаждения температура в нижней части камеры сгорания снижалась до 550-600о С. Вода служила также для охлаждения стенок камеры сгорания и потока горючего газа.

Затем парогазовая смесь поступала на турбину. На подлодках верфи Блом и Фосс была установлена одновальная многоступенчатая турбина производства турбинной фабрики Брюкнер, Капис и Ко (БКС) из Дрездена. На подлодке WK 202 была установлена 4- х ступеначатая турбина с шестерней Кертиса фирмы Крупп-Гсрмания Верфт. Коэффициент полезною действия 14-ступенчатой БКС-турбины был 77%, что было па 14% больше КПД турбины фирмы Крупп-Германия Верфт. Кроме того, она быстрее выходила на полную нагрузку (33 секунды против I минуты).

Ротор турбины мощностью 2500лс. фирмы Брюкнер, Кание и Ко.

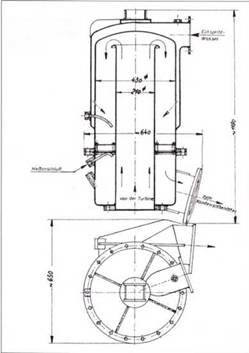
Чертёж турбины фирмы Брюкнер, Кание и Ко в разрезе.

Вид на кормовой отсек подлодки U 1409 с демонтированной турбинной установкой. Справа корпус турбины мощностью 2500.л.с., далее редуктор турбины а планетарный редуктор, над ними па потолке механизм маслорадиатора.

Обе турбины имели выходную мощность 2500 л.с. при 14000 об/мин.

Турбина фирмы Крупп-Германия Верфт весила 1200 кг.

Данные БКС-турбины:

Статор:

Первая крыльчатка 104 лопатки размером 17 мм

Последняя крыльчатка 112 лопаток размером 37 мм

Ротор (максимальный диаметр 210 мм):

Первая крыльчатка 104 лопатки размером 19 мм

Последняя крыльчатка 99 лопаток размером 39 мм

Высокое число оборотов турбины дважды снижалось по пути в винту. Сначала это был турбинный редуктор фирмы Канис-Родер с соотношением 3,85:1 и затем – планетарный редуктор фирмы Штокихт с соотношением 6.54:1.

Прибор блокировки воды должен был с помощью сальника герметизировать турбину от излишков воды. Она охлаждалась, очищалась и вновь использовалась в камере сгорания. Цен тробежный насос фирмы Кляйн-Шанцпин мощностью 60 л.с. имел мощность 18-20 м³ в час. Он приводился в действие электродвигателем AEG-AWV 85 мощностью 2,7 квт при 1000 об/мин и напряжении 110 в или 8.8 квт при 2000 об/мин и напряжением 320 в. Позднее было предусмотрено использование ручного вспомогательного насоса для этих целей.

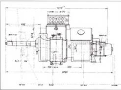
Оригинальный чертёж турбинной установки с редуктором подлодки WK 202.

Чертеж планетарного редуктора в разрезе.

Планетарный редуктор со снятой крышкой.

Размерный эскиз откачивающего насоса тина XVII.

Размерный эскиз насоса для откачки конденсата.

Чертёж конденсатора типа XVII в разрезе.

Конденсатор устанавливался на корпусе турбины, в нем собирался отработанный водяной нар выходящий из турбины. Температура на выходе опускалась до 95о С и вода откачивалась насосом и затем охлаждалась до 35о С и возвращалась по трубопроводу как чистая вода для камеры сгорания.

Холодильники морской воды на Wa 201 состояли из 1100 трубок диаметром 11/14 мм м длиной 3500 мм. Его мощность составляла 900 м³ морской воды в час и 150 м³ конденсата в час.

На XVII В входящая и вытекающая морская вода отбиралась и удалялась 3 соплами на корпусе, находящимися в районе турбинного отсека. При скорости 26 узлов скорость протока воды составляла 2850 м³ в час.

Насос для отбора конденсата фирмы Кляйне-Шанцлин при 3500 об/мин имел мощность 185 м³ в час. Он приводился в действие электродвигателем AEG-AWV 59 мощностью 15,3 л.с.

Газовый сепаратор по давлением 6,8 м³ собирал остатки конденсата из С02 и водяного пара и удалял их за борт. С02 за бортом относительно быстро растворялся в морской воде, не оставляя заметного слсда на поверхности воды. След мог появиться однако при использовании топлива, содержащего свободный азот, например декалина.

Перекись водорода на подлодках Вальтера хранилась в специальных ёмкостях из пластмассы. Этот пластик получали путем прибавки пластификатора в поливинилхлорид (НВХ). Ёмкости изготавливали, используя листы IIBX толщиной 5 мм. Толщина полученного пластика марки «Миполам» составляла 3 мм. Емкости имели горловины для заливки и опоражнивания, их закрепляли с помощью петель на трубчатых тягах. «Миполам» выпускала фирма «Динамит-АГ» (прежде принадлежавшая Альфреду Нобелю и Ко) в Тройсдорфе под Кёльном. На подлодках серии XVII В было установлено четыре труппы ёмкостей: 9 в передней части корпуса и 8 – в задней, всего 6 т перекиси водорода в легком корпусе лодки. Они были отделены от прочного корпуса съёмными пластинами. Подача перекиси осуществлялась благодаря наружному давлению воды, которая сжимала мягкие пластиковые ёмкости до опустошения.

Чертёж электродвигателя АТ 98 подлодки XVII В.

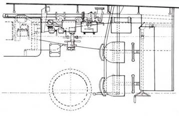
Пульт управления турбины в подлодке XVII серии. Он располагался на боковой стороне водонепроницаемой переборки турбинного отсеки. Под панелью с измерительными приборами находилась консоль с 5 штурвалами ручного привода. Самый большой штурвал (слева) относился к трёхпозиционному переключателю. Три малых штурвала в центре служили для управления клапанами турбины на входе в каталитическую камеру. Правый из них – штурвал 4-х позиционного регулятора подачи смеси, переключатели, расположенные над ним, служили для управления клапанами впрыска топлива в камере сгорания. Два штурвала справа ни стенке водонепроницаемой переборки с контрольными стеклянными трубками относились к прибору блокировки воды. Над ними – консоль (на фото плохо заметная) с 7 вентилями для быстрого запуска турбины и 5 вентилями для осушения турбины, каталитической камеры и сепаратора.

Дизельный мотор

На подлодках Wa 201 и WK 202. а также серии XVII В/G был установлен 8-цилиндровый 4-тактный корабельный дизельный мотор типа SAA8 M517. Это был серийный мотор фирмы Клёкнер, Гумбольдт-Дойтц, который прежде устанавливался на небольшие катера: полицейские, таможенные и пожарные. С наддувом, который обеспечивал компрессор, этот дизель развивал максимальную мощность 210 л.с. при 1350 об/мин. При этом винт вращался со скоростью 208 об/мин. При полной нагрузке удельный расход топлива составлял 190 г/л.с. При зарядке аккумуляторных батарей дизель работал на мощности 125 л.с. при 800 об/мин, при этом 45 л.с. отбиралось на силовую установку и 80 л.с. на генератор.

Шпорхель

13 июля 1944 г. командование кригсмарине обсудило с представителями верфи Блом и Фосс вопрос об установке шнорхеля на подлодки серии XVII В. Планировалось установить шпорхель, уже используемый на экспериментальных подлодках U 57 и U58. Его выдвижную воздушную мачту предлагалось установить позади перископа, используя уже имеющуюся трубу в рубке. В головке шнорхеля был установлен шаровой поплавковый клапан.

22 сентября 1944 г. были представлены описание и инструкция по эксплуатации шнорхельной установки для подлодки серии XVII В. Диаметр выдвижной воздушной мачты составлял 180 мм. Кольцевой поплавок головного клапана имел специальное антирадарное покрытие. Телескопическая мачта для отвода выхлопных газов была скреплена вместе с воздушной мачтой шнорхеля и могла выдвигаться вместе с ней. Воздушная мачта шнорхеля выдвигалась и убиралась как и перископ с помощью канатной лебёдки с электроприводом. Выдвинутая мачта шнорхеля удерживалась в конечном положении путем автоблокировки механизмов и упором ручного механизма. Шпорхель позволял получать следующие показатели под водой:

1. без нагрузки: мощность двигателя 193 л.с. и 1350 об/мин, скорость 7,5 узла

2. с нагрузкой: мощность двигателя 154 л.с. и 995 об/мии. скорость 5 узлов

3. с максимальной дальностью и нагрузкой: мощность двигателя 69 л.с. и 772 об/мин, скорость 3.85 узла

Осталось неизвестным, был ли установлен шнорхель этого типа на подлодке U 1405. В апреле 1945 г. на ней установили шнорхель с электропневматическим головным клапаном. Шнорхель такого же типа должны были установить на подлодки U 1406 и U 1405.

Дизельный мотор типа SAA8 М517 мощностью 125-210 л.с. при 800-450 об/мин.

Якорь электродвигателя АТ 98.

Электродвигатель

На подлодках Wa 201 и WK 202 был установлен 4-полюсный электродвигатель постоянного тока типа AWT 97 фирмы АЕГ. На подлодках серии XVII В ставился электродвигатель типа АТ 98. который только незначительно отличался от AWT 97. Оба электромотора имели одинаковые якорь, обмотку шунта, коммутатор с усадочным кольцом, а также переключатель полюсов. Электромотор развивал до 4000 об/мин. Подшипник скольжения и подшипник ротора с кольцевой смазкой обеспечивали необходимое охлаждение. Электродвигатель имел небольшой вес (1320 кг) и соответственно небольшие размеры (длина 1,035 м). Диапазон работы электродвигателя был широким:

Мощность, кВт Скорость вращения оборотов/мин Напряжение, вольт

4-37 360-795 55-110

80 850 170

180 3860 400

Время работы при максимальной мощности 180 квг было ограничено 45 мин. Электромотор располагался иод палубой перед водонепроницаемой переборкой турбинного отсека.

Электроприборы

В первом проекте распределительный щит подлодки Вальтера был создан единым, чтобы облегчить условия контроля и обслуживания предохранителей и автоматических выключателей. Главными требованиями были простота изготовления, компактность и удобные условия эксплуатации. Основой для создания послужил распределительный щит, использовавшийся на подлодке серии VII С/42.

На подлодке Wa 201 распределительное устройство состояло из главного и вспомогательного распределительных щи тов, которые были установлены рядом в общем корпусе. Главный распределительный щит имел в центре на передней стороне рукоятку. С помощью её вращения активизировалась обмотка компаунд-машины и запускался электродвигатель. Одновременно обмотка возбуждения включала всё электрополе. Две первых ступени переключателя хода были связаны с двумя частями батареи, каждая из которых имела напряжение 55 вольт. Одна половина батареи должна была обеспечить нормальную работу электродвигателя. В случае сильной разрядки одной половины батареи, автоматически должна была подключаться другая половина. На 3-й ступени (скорости) на якорь электродвигателя подавалось напряжение 110 в. Это был режим максимальной работы электродвигателя.

Моторы насосов и компрессоры запускались переключателями, расположенными на вспомогательном распределительном щите. Здесь же находились датчики числа их оборотов, а также электродвигателя, генератора и других электроприборов. Генератор имел автоматический регулятор. При остановке турбины Вальтера электромотор работал некоторое время на полной мощности, а затем переходил на нормальный режим работы.

Вид на переднюю стенку распределительного щита подлодки XVII B.

Тоже самое, но в открытом состоянии.

Аккумуляторная батарея

Обычно на подлодках серии XVII В устанавливалась такая же батарея, как и на опытных лодках Wa 201 и WK 202. Аккумуляторная батарея состояла из 62 элементов и имела ёмкость 2980 ампер- часов при 10-часовой нагрузке. В 1943 г. стал вопрос о увеличении мощности аккумуляторной батареям, т.к. боевые подлодки Вальтера должны были находиться под водой до 50 часов. Стоявшие на подлодках серии XVII В батареи могли дать ток электромотору только на 25 часов. После увеличения элементов батареи их ёмкость возросла до 4560 ампер-часов при 10-часовой нагрузке, в таких условиях они могли работать под водой до 38 часов. Дальнейшее увеличение размеров аккумуляторных батарей невозможно было из-за ограниченных размеров корпуса подлодки. Чтобы сократить время зарядки батарей при ёмкости 4560 ампер-часов, было предложено установить вместо проектируемого дизеля мощностью 210 л.с. более мощный в 400 л.с. Однако из-за трудностей поставок от этой идеи пришлось отказаться.

Система автоматического управления

Развитием автоматической системы управления но курсу и глубине занимались фирмы «Аскания-Верке АГ» из берлинского пригорода Фриденау и «Аппараты и машины Сименса ГмбН» из берлинского пригорода Мариенфельд. Фирма Вальтера предъявляла высокие требования к системе управления подлодки и одновременно просила решить их эту проблему быстро. Автоматическая система управления по курсу была связана с гирокомпасом, который фиксировал отклонение по курсовому датчику. Заданный курс подлодки удерживался благодаря отклонениям руля направления. Для выдерживания необходимой глубины погружения прибор, следящий за глубиной, передавал импульсы на рулевые машины, которые двигали (вверх или вниз) рули глубины.

Комбинированная установка рулей направления и глубины на подлодке WK 202. На более поздних подлодках Вальтера XXI серии вместо обычных ручных штурвалов были установлен рычаг управления.

Схема электрооборудования подлодки XVII В.

Первоначальный проект подлодки Wa 201 верфи Блом и Фосс предусматривал пульт управления с двумя ручными штурвалами, с помощью которых регулировали положение рулей направления и глубины. Позже для устойчивости движения на больших скоростях был установлен вспомогательный руль Флеттенера, который значительно снизил силовую нагрузку на органы управления. Это позволило вести ручное управление подлодкой без вспомогательных сервомоторов.

Из-за большого трения при управлении рулями Флеттнера и запланированной постройки автоматического управления при помощи электромоторов устройство руля направления на Wu 201 было перестроено. Оно состояло только из электроприборов: преобразователя Леонарда, мотора руля с редуктором и приборов управления. Соответствующие движения ручного штурвала преобразовывались в электроимпульсы, регулирующие движение руля. Этот сложный прибор был испытан на подлодке U 792, но результаты испытаний остались неясными и пришлось вернуться к ручному управлению.

Ещё в 1937 г. фирма Аскания создали автоматический прибор управления задними рулями глубины. Позже на его основе был создан прибор «автоматического управления по курсу а глубине» (прибор «КТ») для опытной подлодки Вальтера типа V 80. На фото – испытательный стенд для «КТ» прибора. Здесь показано испытание одного из приборов в сентябре 1940 г. Однако он так и не был установлен на подлодке V 80.

Важнейшим шагом па пути создания системы автоматического управления подлодкой стало изобретение прибора преобразования и усиления импульсов в команды для рулевых электромоторов. Это было сделано в 1941 г. старшим инженером фирмы Аскания Тушке. На фотографии, сделанной в ноябре 1942 г., показан испытательный стенд. Это был экспериментальный прибор, который не устанавливался на подлодках Вальтера.

Схема управления на подлодке Wa 20!.

Схема автоматического управления для подлодки Wa 201.

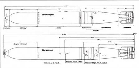
Размерный эскиз торпеды типа G 5ut Goldbutt («золотая камбала»).

Вид на переднюю чисть опрокинутой подлодки Вальтера U 1409. Затворы и крышки торпедных аппаратов отсутствуют.

Более 800 000 книг и аудиокниг! 📚

Получи 2 месяца Литрес Подписки в подарок и наслаждайся неограниченным чтением

ПОЛУЧИТЬ ПОДАРОК