Постройка подлодок Вальтера U 792 - U 795

После принятия принципиальных решений о постройке экспериментальных подлодок последовало предложение Гельмута Вальтера руководству кригсмарине начать необходимые подготовительные работы на «Германия-Верфт» и верфи Блом и Фосс. Уже в феврале 1942 г. были заказаны для верфи Блом и Фосс турбины фирмы Брюкнср-Канис и Ко, дизельные моторы фирмы Клёкнер, Хумбольдт-Деутц АГ и планетарный редуктор фирмы Оиель/Штоекихт. Проект верфи Блом и Фосс получил заводское обозначение Wa 201, а проект «Германия-Верфт» сначала имел обозначение WK 201, позднее во избежание путаницы ему было присвоено обозначение WK 202.

В мае было принято окончательное решение о постройке подлодки Вальтера па верфи Блом и Фосс. Она получила, следуя опыту самолетостроения, новый тип рулевого устройства. Оно позволяло снижать (компенсировать) значительные усилия на руль на высоких скоростях за счёт применения компенсированного руля Флеттнера. Благодаря этому стало возможным рулевое управление без установки вспомогательных сервомоторов. В проекте «Германия-Верфт» предусматривалась установка компенсированного руля, который приводился в действие гидравлическим сервомеханизмом.

Заказы на постройку двух подлодок U 792 и U 793 проекта Wa 201 были получены 19 июня 1942 г. Одновременно верфь Блом и Фосс получила от фирмы Вальтера заказ на изготовление наземного испытательного стенда для проектируемых турбинных установок. Он должен был установлен на заводе Вальтера внутри фрагмента корпуса подлодки проекта Wa 201. В ноябре 1942 г. этот фрагмент корпуса был доставлен на завод Вальтера, где на нём начали монтировать испытательный стенд. К апрелю 1943 г. стенд был почти готов к работе. Для экономии перекиси водорода при опытных запусках турбин была специально построена батарея из 6 небольших баллонов высокого давления фирмы Хеншель. Первые эксперименты на стенде начались в мае 1943 г. под руководством дипломированного инженера Острайха. При комплексных испытания с применением перекиси водорода и всего вспомогательного оборудования в ноябре 1943 г. были получены следующие результаты:

давление на входе турбины 27,3 атм

удельный расход пара 6,15 кг/лс-ч

температура на входе турбины 483оС

удельный расход перекиси водорода 2,57 кг/лс-ч давление на выходе турбины 2,65 атм

удельный расход топлива 0,287 кг/лс-ч

мощность турбины 2595 лс при 13689 об/мин

Схема расположения шпангоутов к конструкции подлодки И'К 202.

Стенд для наземных испытаний турбин Вальтера, устанавливаемых на подлодки XIII серии, был расположен на территории его завода, находившегося на улице Пройендорф к Танненберге.

Из-за задержки в поставках оборудования, затянувшихся подготовительных работ и испытаний закладка подлодки Wa 201 смогла состояться только I декабря 1942 г. Сборка подлодки состоялась на монтажной площадке под большим краном у прибрежной стенки, выложенной камнем. В феврале-марте 1943 г. были готовы прочные корпуса U 792 и U 793 и испытаны на сжатие. В марте-апреле должны были поставить дизельные и электрические моторы и в мае-июне – силовые установки Вальтера. Сборка двигательной установки последовала в смежном турбинном цехе верфи Блом и Фосс. В середине 1943 г. первая построенная подлодка U 792 была спущена на воду 250-т краном, спуск со стапеля U 793 предусматривался в середине августа. Передача подлодок па испытания планировалась в начале сентября или октября 1943 г. Задержки с поставками и, главным образом, постоянно вносимые изменения в конструкцию турбинного отсека (его размер увеличился почти на 2 м) привели к тому, что обе лодки долгое время оставались на верфи. 24 июля 1943 г. внезапно над Гамбургом раскрылись ворота ада – союзная авиация нанесла массированный удар. Хотя строящиеся подлодки в ангарах верфи пострадали незначительно, однако машинный завод и район достроечной стенки были серьезно повреждены. Из-за близкого разрыва бомбы были повреждены обе подлодки Wa 201. Одна из подлодок была перевёрнута взрывом, другая была опрокинута со стапеля. Повезло и рабочим, убитых среди них не было, они успели убежать от огненного смерча. Одну лодку подняли на стапель 28 сентября 1943 г. Работы на U 792 были начаты 16 ноября 1943 г. под руководством командира лодки лейтенанта Хайтца, который с июня 1942 г командовал почти год дизельной подлодкой U 664.

Чертёж подлодки проекта верфи Блом и Фосс Wa 201.

Чертёж подлодки проекта «Гёрмапия-Верфт» WK 202

Модели подлодок Вальтера Wa 201 и WK 202 (вверху) перед аэродинамической трубой научно-исследовательского авиационного института в Брауншвейге. Там изучалось действие рулевого управления при использовании различных моделей руля. Полученные измерения моментов на балере руля показали, что лучше управляемость на высоких скоростях у подлодки проекта верфи Блом и Фосс. При небольших скоростях были получены неожиданные экспериментальные результаты, опубликованные уже после войны Вальтером (13.7.45) и Гиблером (14.12.46).

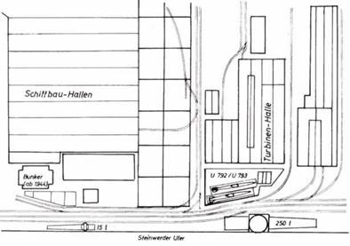
Место постройки подлодок V 792/793 на верфи Блом и Фосс.

7 августа 1942 г. фирма «Германия-Верфт» получила заказ на две подлодки U 794 и U 795 проекта WK 202 после того как отдел К аннулировал проект V 300. По предложению Дёница фирма Вальтер создала проект атлантической скоростной подлодки (проект Р 476 – Wa 401- обозначение кригсмарине тип XVIII), основой которой стала новая подлодка Вальтера (проект 477). В этих условиях продолжать работу над устаревшим проектом V 300 не имело смысла.

В начале февраля 1943 г. на фирме «Германия-Верфт» была заложена подлодка Вальтера, которая располагалась слева от переднего входа в эллинг № VII рядом со строящейся подлодкой U 249. Именно гам она была сфотографирована британским воздушным разведчиком 31 июля 1943 г. и классифицирована как малая 110-ти фуговая подлодка. К большому удивлению британских дешифровальщиков аэрофотоснимков она исчезла со снимков у эллинга в начале сентября 1943 г. и нигде в окрестностях Киля больше не обнаруживалась. Фактически же это был готовый прочный корпус, который был перенесён плавучим краном в машинный цех для установки оборудования. Гам были установлены основные механизмы и остальные приборы и устройства.

К сожалению, и на фирме «Германия-Верфт» не удалось выдержать установленные сроки готовности подлодок: 7 сентября и 5 октября 1943 г. Первая подлодка U 794 была спущена на воду 7 октября 1943 г. Она была готова к испытаниям 14 ноября. Командиром U 794 был назначен оберлейтепант Вернер Клюг, опытный офицер-подводник. Прежде он служил на дизельной U 69 под командой капитан-лейтенанта Мельцера и на U 552 под командой капитан-лейтенанта Тонна.

14 ноября 1943 г. первая подлодка Вальтера U 794 была сдана кригсмарине фирмой «Германия-Верфт» в Киле. Здесь групповой снимок офицеров и унтер-офицеров экипажа, а также представителей фирмы Вальтера и верфи. В середине в нервом ряду в шляпе и пальто Гельмут Вальтер, который беседует с командиром подлодки оберлейтенантом Вернером Клюге. Позади этих двух персон во втором ряду виден начальник испытательного отдела фирмы Вальтера инженер-капитан Хеллер, который из-за своего небольшого роста получил прозвище «Фипс». Крайний слева сидит командир 5-й флотилии подлодок капитан Моле. Позади него стоит (у левой кромки снимка) директор фирмы «Германия-Верфт» Санден.

Более 800 000 книг и аудиокниг! 📚

Получи 2 месяца Литрес Подписки в подарок и наслаждайся неограниченным чтением

ПОЛУЧИТЬ ПОДАРОК